• 中文版
  • English
首页 新闻资讯 华南理工团队,微通道液冷助力芯片远离 “高温”

华南理工团队,微通道液冷助力芯片远离 “高温”

时间:2025年10月08日

来源 | International Journal of Thermal Sciences

链接 | https://doi.org/10.1016/j.ijthermalsci.2025.110297




01

背景介绍


高性能芯片集成度提升,需满足更高换热效率、更强可靠性、更优能效与紧凑性的液冷技术;传统射流冷却虽在高热流密度(>200W/cm²)下优于风冷、热管、浸没冷却等,但现有研究多聚焦宏观结构(如翅片、多孔材料)对流动特性或换热系数的影响,微纳结构及亲水表面在单相流射流微通道中的作用研究不足。




02

成果掠影


微信图片_2025-10-09_092029_165.png


近日,华南理工大学潘敏强团队提出了一种亲水表面处理射流微通道液体冷却系统用于芯片散热,采用表面微观表征技术研究了亲水表面的微观结构通过热分析(SEM、EDS和接触角测量)来分析亲水性表面对传热行为的影响。实验研究了不同射流参数对系统性能的影响,结果表明,亲水铜表面形成了以氧化铜(CuO)为主的微纳米结构,显著改善了表面粗糙度和润湿性。亲水表面处理射流微通道液体冷却系统的传热性能得到了增强,尤其是在较低流量下。在热源功率为1000 W、流量为1.0 L/min时,热源平均温度降低了11.23 ℃,结果表明,当流量从1.0L/min增加到3.0L/ min时,泵的综合性能提高了28.44%,泵的能耗提高了4.89%,换热性能提高了14.09%,热源温度降低率从23.36%减小到4.09%,努塞尔数增加率从25.57%减小到3.16%,且随着孔间距的增大,热源温度先降低后升高,在流量为1.5 L/min、热源功率为1000 W时,喷孔间距为6 mm、射流高度为1 mm时亲水表面处理射流微通道液体冷却系统的综合性能最佳,综合性能评价标准为1.96。验证亲水表面处理和射流微通道冷却相结合在强化换热性能方面的有效性,为进一步分析影响换热和流动性能的关键结构参数提供指导。研究成果以“Design and performance study of a hydrophilic surface-treated jet microchannel liquid cooling system for chip heat dissipation”为题发表在《International Journal of Thermal Sciences》




03

图文导读


微信图片_2025-10-09_092041_607.jpg

图1.射流微通道液体冷却板结构和冷却剂流路示意图。

微信图片_2025-10-09_092044_632.png

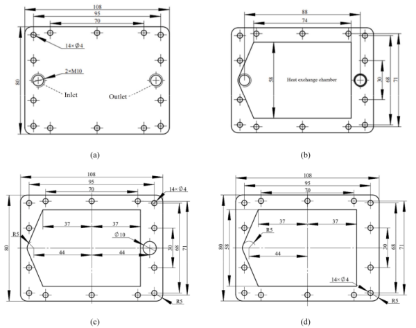
图2.喷射单元结构尺寸及基板内冷却剂流路示意图(a)FS基板尺寸示意图(b)HF基板尺寸示意图(c)HF基板内冷却剂流路示意图(d)喷射板尺寸示意图。

微信图片_2025-10-09_092047_320.png

图3.夹紧单元结构尺寸示意图(a)盖板上表面尺寸示意图(b)盖板底面尺寸示意图(c)密封垫1尺寸示意图(d)密封垫2尺寸示意图。

微信图片_2025-10-09_092049_925.jpg

图4.基板结构的物理图像(a)FS基板,(B)HF基板,(c)HSFS基板,(d)HSHF基板。

微信图片_2025-10-09_092052_682.jpg

图5.射流微通道液体冷却系统示意图。

微信图片_2025-10-09_092055_328.png

图6.加热模块结构示意图(a)加热模块示意图,(B)铜加热块上测温点位置示意图。

微信图片_2025-10-09_092058_441.jpg

图 7.不同底板结构对传热性能的影响分析。

微信图片_2025-10-09_092101_648.png

图 8:不同基板的P-V曲线(左)不同基板的PEC与V的曲线(右)。

微信图片_2025-10-09_092103_714.png

图 9.不同时间未处理翅片表面上的液滴和流体形态。

微信图片_2025-10-09_092106_241.png

图 10:在不同时间下,经表面处理的鳍片表面上的液滴和流体形态。

微信图片_2025-10-09_092108_636.png

图 11:未处理的铜翅片表面上的Tb和Tu对t的曲线(左);铜鳍片表面化学处理后的Tb-t曲线(右)。

微信图片_2025-10-09_092110_997.png

图 12:不同S对传热性能的影响分析。

微信图片_2025-10-09_092113_233.png

图 13:不同H值对传热性能的影响分析。

微信图片_2025-10-09_092147_274.png

图 14:不同H时的P-V曲线(左);不同H下PEC与V的曲线(右)。


微信图片_2025-10-09_092150_642.jpg


潘敏强,教授,博导,主要从事芯片热管理与数据中心液冷技术,近年致力于国家新基建重点产业的数据中心液冷技术产业化。目前已主持30余项国家级、省部级、市级以及其它项目,包括3项国家自然科学基金项目(面上项目、青年基金项目和广东联合基金培育项目各1项)、1项教育部博士点基金项目、1项霍英东教育基金会项目(当年全国仅37项立项)、3项广东省自然科学基金项目(重点项目、面上项目和博士启动项目各1项)、1项广东省高新技术产业化项目、1项广东省粤港联合创新项目、1项教育部重点实验室开放基金项目、1项广州市科技计划项目、4项中央高校基本科研业务费项目(重点项目2项、培育项目和面上项目各1项)、多项企事业单位委托技术开发项目。


目前发表论文100余篇,其中60余篇被SCI收录,以第一作者或通讯作者发表论文30余篇,其中多篇论文发表在2016年度影响因子大于2.5的国际期刊上,包括Journal of Power Sources(能源领域顶级期刊,),International Journal of Hydrogen Energy(氢源领域国际权威期刊),AIChE Journal(化工领域顶级综合性期刊),Applied Energy,Chemical Engineering Journal 以及Renewable Energy等国际期刊上。博士学位论文“基于流速分布优化的制氢反应微通道加工及性能研究”被评为华南理工大学优秀博士论文。


微信图片_2025-10-09_092154_426.jpg